Gap closing
A town house in Linden
A town house in Linden
3rd semester B.Sc
Winter semester 2019/20
In collaboration with Tuulia Brax
Winter semester 2019/20
In collaboration with Tuulia Brax
Leibniz University Hanover
Faculty of Architecture and Landscape
Department of Architecture
Dipl.-Ing.Tatjana Sabljo
Dipl.-Ing. Andrea Schmidt
Prof. Zvonko Turkali
Faculty of Architecture and Landscape
Department of Architecture
Dipl.-Ing.Tatjana Sabljo
Dipl.-Ing. Andrea Schmidt
Prof. Zvonko Turkali
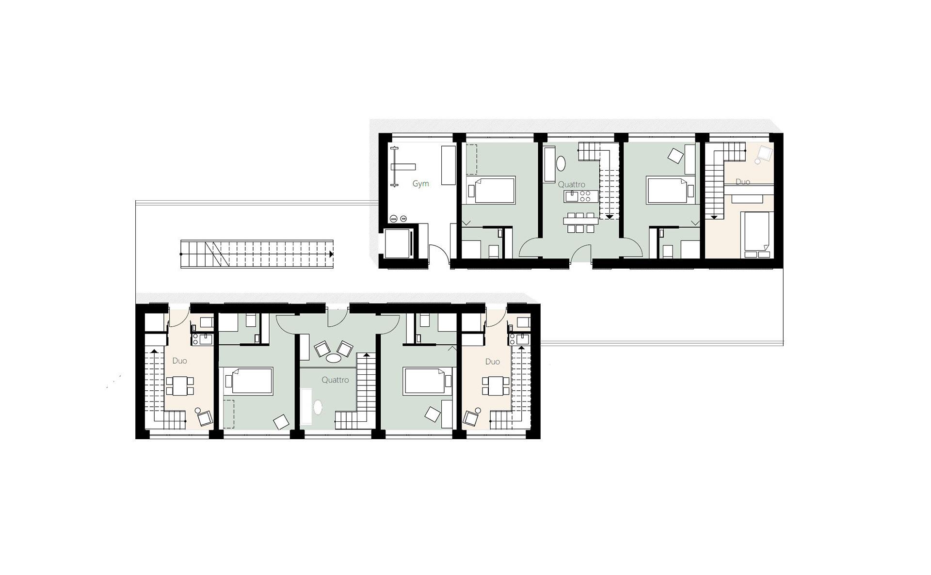
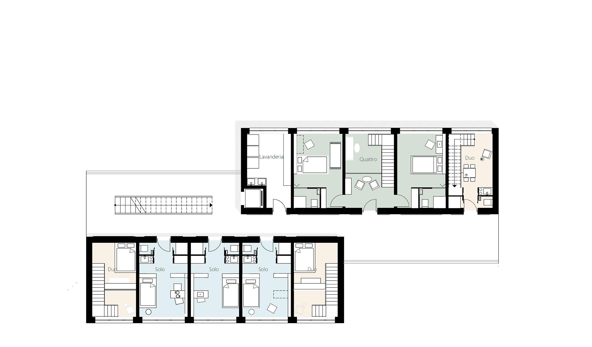
The building is located in Hannover Linden. Its two solitary blocks stand one behind the other and are connected by an arcade. The courtyard is intended to provide a public space for the residents of Linden. On the ground floor there is a café and a social space where the residents of the building and the surrounding area can come together. The staircase leads to the flats. To reflect the diversity of users in the courtyard, there are three different types of apartments in different sizes. The smallest is the solo flat. The large windows let a lot of light into the rooms, making it seem much larger. The next largest flat is a maisonette, which has a utility core and living room downstairs and the sleeping area upstairs. The third type of apartment is a large shared apartment with four rooms. The core is also a maisonette, from which two rooms lead off on the upper and lower floors. The floor plans show the idea of living through, which runs from the circulation to the generous façade.