Sleeping Houses
Timber Construction
Timber Construction
3rd semester B.Sc
Winter semester 2019/20
In collaboration with Laura Gonzo
Winter semester 2019/20
In collaboration with Laura Gonzo
Leibniz University Hanover
Faculty of Architecture and Landscape
Institute for Design and Construction
Building Construction and Design
Prof. M. Schumacher
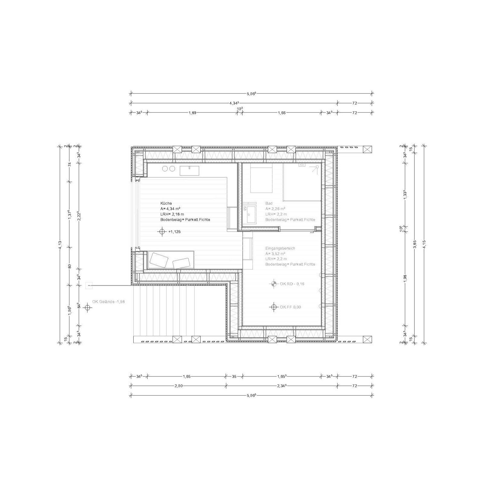
Komorebi is a Japanese word for sunlight that is filtered through the leaves of the trees. This effect is also created in our design and thus gave the wooden building its name. For the annual Apple Tree Garden Festival in Germany, there is a need for sleeping accommodation for artists and crew members in the back-stage area of the site. Compact wooden buildings are to be created here with the smallest possible footprint, nestled among the trees on the site. With the design we opted for permanent buildings that will be used as youth hostels alongside the festival. This is intended to give the park a new use and enhance its value. With a minimal footprint of just under 30 m², up to eight people will be able to spend the night, relax and recharge their batteries. The design was inspired by the trees. Its supporting structure represents the trunk and branches of a tree. The wooden supports stand at an angle and support each other. Thus the load is transferred in different ways. This alignment creates rhomboids that can grow upwards depending on the space available. Levels are inserted at the intersections of the supports. These form the different used areas of the design. You move from one area to the next via them, as if through a tree, using short stepladders. From the entrance area, with the cloakroom and the small bathroom, one reaches a small kitchenette. Further up are the first four sleeping accommodations, which are attached as bunk beds in a rhombus each and form part of the supporting structure. This is followed by two more sleeping accommodations, after which one finally reaches the roof terrace at the very top. The façade is intended to reflect the foliage of the trees. The interlocking spruce cladding runs once across the design and is set between the rhombuses. Where there are windows in the rhombuses, only every second batten is set, creating the eponymous effect of light in the dormitory. Faculty of Architecture and Landscape
Institute for Design and Construction
Building Construction and Design
Prof. M. Schumacher